ТРЦ «Небо» открыт в Нижнем Новгороде

4 ноября состоялось долгожданное открытие торгово-развлекательного центра «Небо» на площади Лядова. На торжественном мероприятии приняли участие представители администрация города Нижнего Новгорода и области. Подрядной организацией строительства ТРЦ выступала чешская компания PSJ. Девелоперами проекта ТРЦ «Небо» являются федеральная компания «Союз Маринс Групп» и нижегородская группа компаний «Электроника». Сумма вложений в ТРЦ на первоначальном этапе строительства составила порядка 6,7 млрд. рублей.

Группа компаний «Электроника» - крупный региональный холдинг, объединяющий организации и предприятия различных направлений бизнеса с единым административным центром. Компания работает на рынке девелопмента и менеджмента недвижимости, является крупным региональным инвестором и застройщиком.


Валерий Шанцев на открытии ТРЦ «Небо»

ТРЦ «Небо» является одним из крупнейших торговых центров в Нижегородской области. Зона охвата составляет более 535000 человек. Расположен ТЦ на площади Лядова с высоким транспортным потоком и значительным пешеходным трафиком. По своей уникальности он не имеет конкурентов. Проект реализовывался с учётом современных стандартов и использования самых последних технологий. Инженерное обеспечение ТРЦ «Небо» создаёт необходимые температурно-влажностные параметры, режимы освещения, условия хранения и экспонирования товаров, что дает возможность комфортно себя чувствовать как арендаторам, так и посетителям в любую погоду. Общая площадь ТЦ составляет 144000 кв. м, из них под торговые площади отдано 72000 кв. м. Для арендаторов предоставлены площади от 8 до 2000 кв. м.


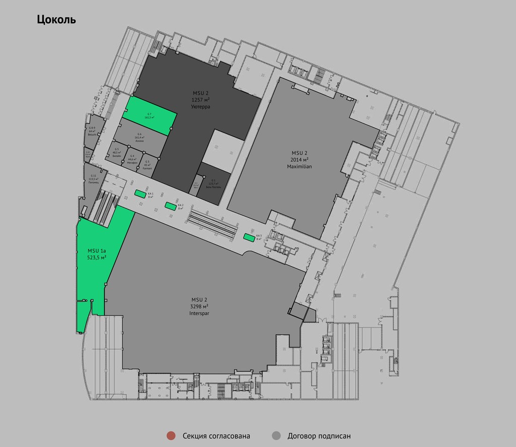
Цокольный этаж ТРЦ «Небо»


1 этаж ТРЦ «Небо»


2 этаж ТРЦ «Небо»


3 этаж ТРЦ «Небо»


4 этаж ТРЦ «Небо»


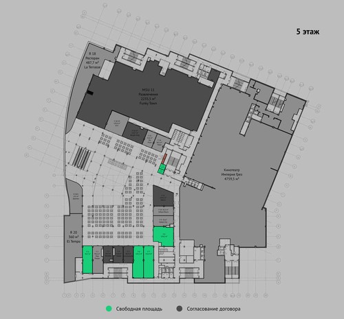
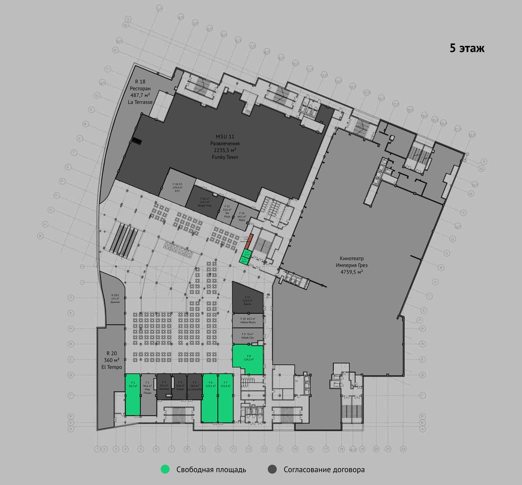
5 этаж ТРЦ «Небо»

«Объект впечатляет. Я считаю, что это будет один из самых лучших торговых центров. Один из крупнейших объектов коммерческой недвижимости Приволжского округа — ТРК «НЕБО» - станет одним из ведущих досуговых центров региона, а также создаст более 2000 новых рабочих мест», - сообщил Валерий Шанцев, Губернатор Нижегородской области.

Для удобства посетителей торгового комплекса предусмотрена парковка на 1800 машиномест, из них подземная парковка в два яруса на 800 машиномест. Из якорных арендаторов можно отметить: Перекресток Зеленый, Уютерра (товары для дома), Максимилиан (ресторан-пивоварня), H&M, Koton, Mango, Benetton, Л’ Этуаль, Vito Ponti, М.Видео, Детский Мир, Leonardo, Funny Land (детский парк развлечений), Империя Грез (кинотеатр, IMAX), Gold’s Fitness (фитнесс центр).

«На мой взгляд, занято только 50% торговых площадей. На фуд-корте только «Бургер Кинг». Интересных новых магазинов я для себя не нашёл. Но это не самое главное. Главное — что ужасно организованы выезды и заезды на подземный паркинг. Как заезд, так и выезд происходит с постоянно забитой до отказа улицы Белинского. И как таковой промежуточной, разгрузочной площадки для заезжающих машин в ТЦ нет. Поэтому, если одновременно на паркинг поворачивает десяток машин, то неизбежно создаётся дополнительная пробка в крайнем правом ряду улицы Белинского, так как спуск один, и автомобили ждут, пока предыдущий получит билет в парконе», - поделился своими впечатлениями Герман Князев, генеральный директор ЗАО «ПиК НН».

В торговом центре расположатся более 300 брендовых магазинов: Rendez-Vous, Love Republic, Levi’s, Estelle Adony, Incanto, Guess Jeans, Befree, Zarina, Chester, Colin’s, Бизнесмен и многие другие. Из кафе, ресторанов и фуд-корта представлены бренды: Максимилиан, LA Terrace, El Tempo, Безе, KFC, Burger King, Carl's Jr, Ташир Пицца.


Торговый зал в ТРЦ «Небо»

Стоит отметить, что в ресторанах ТРЦ «Небо» открывается красочный панорамный вид на город. В ближайшее время в торговом центре разместится крупнейший фитнес-центр в Приволжском федеральном округе Gold’s Fitness площадью 17500 кв. м, и самый большой в городе фуд-корт на 1000 посадочных мест площадью 3500 кв. м. Из крупнейших детских парков развлечений будет Funny Land с контактным зоопарком площадью 2300 кв. м.

«Здесь будет самый большой фитнес-центр в Европе — можно сказать, ради него все и задумывалось. На первоначальном этапе сумма вложений составила приблизительно 6 млрд. 700 млн. — это без учета средств, которые вложили арендаторы, и того, что еще пойдет на фитнес-центр и кинотеатр», - сообщил Александр Кузнецов, генеральный директор ГК «Электроника».

На момент открытия ТРЦ «Небо» был заполнен арендаторами лишь на 30%. В группе компаний «Электроника» сообщили, что уже через месяц будут работать новые арендаторы, и загрузка увеличится на 50%. Однако, уже заключенные договоры покрывают около 85% арендуемых площадей торгового центра.


Фуд-корт в ТРЦ «Небо»

Из составленного рейтинга компанией DK.RU о действующих торговых центрах, тройка лидеров выглядит следующим образом: ТРЦ «Фантастика» общей площадью 160000 кв. м занимает первое место, на втором – ТЦ «Седьмое небо» площадью 90000 кв. м, на третьем – ТЦ «Индиго Life» площадью 60000 кв. м. С вводом в эксплуатацию ТРЦ «Небо» площадью 144000 кв. м расстановка мест изменится. В связи с этим перераспределится покупательский поток из ближайших территорий города.

«Часть аудитории могут потерять все торговые центры, расположенные в верхней части города, и многие торговые объекты категории fashion в заречной части. Наибольший риск потерять часть трафика имеют ТЦ «Ганза», ТРЦ «Шоколад», ТЦ «Этажи» и ТРЦ «Фантастика», - сообщает Евгения Пономарева, руководитель отдела стратегического консалтинга IDEM.

 


Видео: Открытие ТРЦ «Небо»

06.11.2015, г. Нижний Новгород

Похожие материалы

Вход в личный кабинет